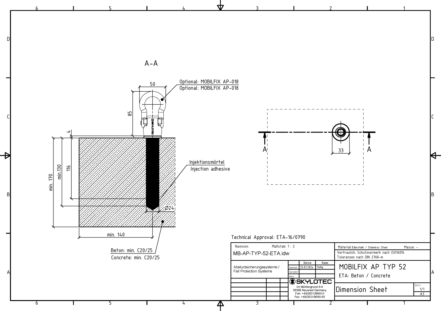
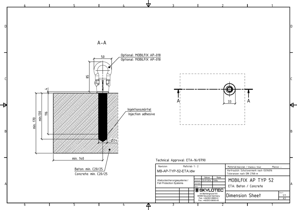
The removable single anchor point MOBILFIX (AP-018) made of stainless steel is designed for regularly recurring work, such as window cleaning. It is tested and certified according to EN 795: 2012, CEN/TS 16415: 2013. The installation sleeve (AP-type-52), for holding the MOBILFIX, is permanently installed in concrete at the point of use. The sleeve has a European Technical Assessment (ETA -16/0790) and is tested and certified according to EN 795: 2012, CEN/TS 16415: 2013. It lies flush in the wall or ceiling and is closed by the internal spring plug. This prevents the penetration of dirt and is visually inconspicuous. The installation is carried out by means of adhesive mortar. The minimum thickness of the substrate is 107 mm. The patented shape of the MOBILFIX prevents the carabiner from dragging on the wall.
- Single anchor point, especially as an anchor point for window cleaners.
-
Fastening with adhesive mortar in concrete, AK 1, approval for 3 persons
Specifications:
- Material: Stainless Steel
- Net Weight: 0.14 kg
- Gross Weight: 0.22 kg
- Maximum Number Of Persons: 3
- Colour: Silver
- Rope Access Technique: No
- Anchor Point Type: Stationary anchor point
-
Type Mounting Base: Concrete
- Thickness Mounting Base: 170mm
- Minimum Area Required: 9 cm2
- Diameter Bore: 24mm
- Diameter Pillar: 20mm
-
Construction Height: 50mm
- Standards: ABZ, EAD 331072-00-0601